Sporák s rúrou na tuhé palivo TYP 9100
Sporák na tuhé palivo je určený na varenie, pečenie aj vykurovanie miestnosti, v ktorej je umiestnený. Vďaka robustnej konštrukcii s hmotnosťou 155 kg a účinnosti až 82,8 % dokáže vyhriať aj priľahlé priestory. Topenisko s liatinovými roštmi umožňuje letný aj zimný režim prevádzky. Sporák má tri možnosti napojenia na komín, vyrába sa v ľavom aj pravom prevedení a ponúka viacero variant platní – oceľových alebo sklokeramických. Energetická trieda A+ zaručuje úspornú a ekologickú prevádzku.
Popis produktu
Sporák na tuhé palivo s rúrou typ 9100 je určený na vykurovanie, varenie, pečenie a ohrievanie jedál. Tento sporák sa vyrába aj v prevedení s teplovodným ohrievačom vody (typ 9100-V). Priestranné ohnisko je možné jednoducho prestaviť na letnú alebo zimnú prevádzku (vyberateľný horný rošt). Jednou z mnohých ďalších výhod je variabilita pripojenia na komín.
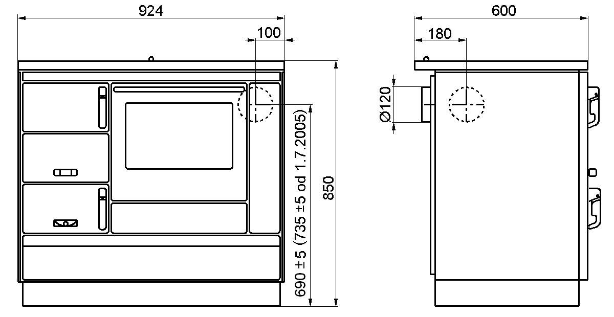
Sporák má už v štandardnom prevedení 3 vývody dymových spalín na pripojenie ku komínu – zozadu, zboku alebo zhora (pozn.: pri použití sklokeramickej platne je možné pripojenie iba z bočnej alebo zadnej strany). Všetky tieto vývody sú umiestnené vedľa seba – viď foto.
Sporák sa vyrába v pravom alebo ľavom prevedení, ktoré sa rozlišuje najmä podľa umiestnenia vývodov do komína (pri pohľade spredu). Pravé prevedenie – všetky 3 vývody dymových spalín sú v pravom rohu a rúra sa nachádza v pravej časti sporáka. Ľavé prevedenie – všetky 3 vývody dymových spalín sú v ľavom rohu a rúra sa nachádza v ľavej časti sporáka.
Charakteristické vlastnosti
- Veľký výkon
- Priestranné ohnisko, jednoducho prestaviteľné na letnú a zimnú prevádzku
- Veľká rúra s vynikajúcimi pečiacimi vlastnosťami
- Presklené dvierka rúry vybavené teplomerom
- Možnosť pripojenia na komín zo zadnej alebo bočnej strany, prípadne z platne
- Moderný dizajn umožňujúci umiestnenie sporáka napríklad do kuchynskej linky
- Pohodlná regulácia prúdenia spalín a výkonu
- Veľká zásuvka na palivo
- Ľavé alebo pravé prevedenie
Farebné prevedenia

Zelená s chrómovanými doplnkami 
Biela s chrómovanými doplnkami 
Bordová s chrómovanými doplnkami 
Čierna s chrómovanými doplnkami 
Svetlo sivá s chrómovanými doplnkami
Technické parametre
Technický popis
Tento sporák je ideálne využiteľný na varenie, pečenie a vykurovanie miestnosti, v ktorej je umiestnený. Je natoľko výkonný, že dokáže vyhriať aj priľahlé priestory. Je to dané vlastnosťami použitých materiálov a robustnou konštrukciou, o čom svedčí aj celková hmotnosť 155 kg. Materiály použité pri výrobe tohto typu sú podobné ako pri ostatných modeloch spotrebičov KVS MORAVIA.
Rúra sporáka je väčších rozmerov a jej vybavenie zahŕňa rošt aj plech na pečenie. Má vynikajúce pečiace vlastnosti, čo vyplýva zo samotnej konštrukcie sporáka – plameň totiž prúdi okolo celého obvodu rúry. Z tohto pohľadu je tento typ vhodnejší pre tých, ktorí uprednostňujú pečenie a varenie pred vykurovaním.
Ohnisko sporáka patrí v tejto kategórii spotrebičov medzi najväčšie, je tradične vyložené šamotovými tehlami a rozdelené na dve časti pomocou liatinových roštov. Toto usporiadanie umožňuje dva režimy prevádzky:
- letná prevádzka – kúrenie na hornom rošte (vhodné na varenie a pečenie),
- zimná prevádzka – kúrenie na spodnom otočnom rošte (vhodné na vykurovanie, varenie a pečenie).
Pri zabudovaní sporáka do kuchynskej linky je možné použiť ochladzovacie panely. Ak sú súčasťou linky aj horné skrinky nad sporákom, je potrebné ich chrániť pred teplom a parou – napríklad odsávačom pár alebo iným spôsobom. V opačnom prípade by mohlo dôjsť k poškodeniu kuchynskej linky.
Schéma












